Skip To Content

10511 S 47TH Lane

Laveen, AZ 85339
  • $580,000
  • STATUS: Closed
  • ON SITE: 546 Days
  • MLS #: 6720364
Sold - 01/31/2025
$580,000
SOLD - 01/31/2025
  • 3
    BEDS
  • 0.17
    ACRES
  • 2
    BATHS
  • 1
    1/2 BATHS
  • 2,390
    SQFT
  • $0
    $/SQFT
Type:
Single-Family Home
Built:
2024
County:
Area:

School Information

Elementary School:
Middle School:

Description

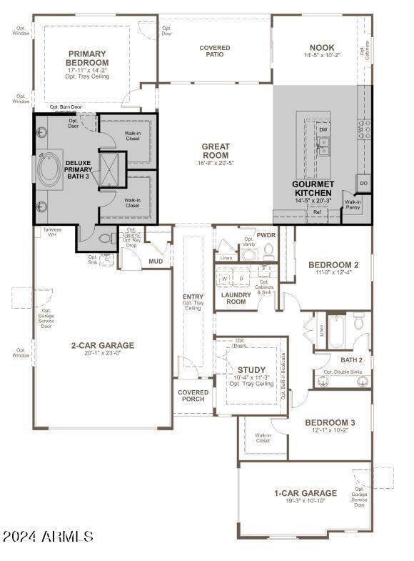
Boasting an open layout ready-made for entertaining, this Pinecrest plan centers around an expansive great room, 10' ceilings, a dining nook and an impressive gourmet kitchen boasting a convenient island, walk-in pantry, with white shaker cabinets, quartz counters, black matte fixtures and stone tile throughout, with carpeted bedrooms. The elegant primary suite is adjacent, showcasing an immense walk-in closet and a private deluxe bathroom with shower and separate tub. Two additional bedrooms, a study, a laundry and a covered patio round out the plan.

Monthly Payment Calculator



Arizona Regional MLS logo© 2025 Arizona Regional Multiple Listing Service, Inc. All rights reserved. All information should be verified by the recipient and none is guaranteed as accurate by ARMLS. The ARMLS logo indicates a property listed by a real estate brokerage other than My Home Group Real Estate. Data last updated 2025-12-16T00:12:14.957.
www.freescottsdalemlssearch.com/homes/151751447
Print Image

10511 S 47TH Lane Laveen, AZ 85339

  • Price: $599,995
  • Status: Closed
  • On Site: 546 Days
  • MLS #: 6720364
3
Beds
2
Baths
1
½ Baths
0.17
Acres
2,390
SQFT
$0
$/SQFT
2024
Built
Neighborhood:
Laveen Vistas Parcel Two Phase 2
County:
Maricopa
Area:
Laveen
Elementary School:
Laveen Elementary School
Middle School:
Laveen Elementary School
High School:
Betty Fairfax High School
Property Description
Boasting an open layout ready-made for entertaining, this Pinecrest plan centers around an expansive great room, 10' ceilings, a dining nook and an impressive gourmet kitchen boasting a convenient island, walk-in pantry, with white shaker cabinets, quartz counters, black matte fixtures and stone tile throughout, with carpeted bedrooms. The elegant primary suite is adjacent, showcasing an immense walk-in closet and a private deluxe bathroom with shower and separate tub. Two additional bedrooms, a study, a laundry and a covered patio round out the plan.
Exterior Features

Architectural Style Ranch Attached Garage YN No Carport Spaces 0 Construction Materials Blown CellulosePaintedStuccoFrame - WoodICAT Recessed Lighting Covered Spaces 3 Exterior Features Covered Patio(s)Patio Fencing Block Horse Amenities [] Horse YN No Lot Features Sprinklers In FrontDesert FrontDirt BackAuto Timer H2O Front Open Parking Spaces 3 Other Structures [] Parking Features Dir Entry frm GarageOver Height GarageSide Vehicle EntryDetached Pool Features None Pool Private YN No Road Responsibility [] Roof Tile Spa Features None View Mountain(s)

Interior Features

Additional Bedroom Walk In Closet Yes Basement [] Basement YN No Bedroom Split Yes Bedrooms Plus 4 Common Walls [] Cook Top Gas Yes Cooling ENERGY STAR Qualified EquipmentProgrammable ThmstatRefrigeration Fireplace Features None Fireplace YN No Great Room Yes Heating ENERGY STAR Qualified EquipmentNatural Gas Interior Features Eat-in KitchenBreakfast BarNo Interior StepsSoft Water LoopKitchen IslandDouble VanityFull Bth Master BdrmSeparate Shwr & TubHigh Speed InternetGranite Counters Master Bedroom Split Yes Master Bedroom Walk In Closet Yes Plumbing Gas Hot Water Tankless Yes Plumbing Tankless Hot Water Heat Yes Separate Den Office YN Yes Walk In Pantry Yes Window Features Dual PaneENERGY STAR Qualified WindowsLow-EVinyl Frame

Property Features

Accessibility Features [] Association Amenities FHA Approved PrjctManagementVA Approved Prjct Association Fee 105 Association Fee Frequency Monthly Association Fee Includes Maintenance Grounds Association YN Yes Auction No Builder Name Richmond American Capmprovement Impact Fee 0 City Services Yes Community Features PlaygroundBiking/Walking Path Current Financing [] Disclosures Agency Discl Req Flooring CarpetTile Green Energy Efficient ENERGY STAR Light Fixture Green Water Conservation Tankless Ht Wtr Heat Land Lease YN No Listing Terms Conventional1031 ExchangeFHAVA Loan Model Pinecrest Other Fees HOA 0 Ownership Fee Simple Ownership Fractional YN No PADFee YN2 No Possible Use [] Prepaid Association Fees HOA 0 Property Attached YN No Property Condition [] Property Sub Type Single Family - Detached Rec Center Fee YN No Security Features [] Sewer Public Sewer Special Assessment HOA No Special Listing Conditions N/A Special Listing Conditions None Yes Tax Annual Amount 269 Tax Year 2023 Total Monthly Fee 105 Unit Style All On One Level Yes Utilities [] Water Source City Water

Arizona Regional MLS logo Listing provided by Richmond American Homes: .


Arizona Regional MLS logo© 2025 Arizona Regional Multiple Listing Service, Inc. All rights reserved. All information should be verified by the recipient and none is guaranteed as accurate by ARMLS. The ARMLS logo indicates a property listed by a real estate brokerage other than My Home Group Real Estate. Data last updated 2025-12-16T00:12:14.957.
 
https://bt-photos.global.ssl.fastly.net/armls/orig_boomver_1_6720364-2.jpg
Logo
My Home Group Real Estate
8350 E. Raintree Dr. Suite 210
Scottsdale AZ, 85260